Gazowy piec konwekcyjno-parowy do piekarni - Manualny - 6x GN 1/1 lub EN 60x40 - włącznie ze zamrażarką szokową
Kod: D9783613Produkty powiązane
Opis szczegółowy produktu
Wykonanie
- Piec na gorące powietrze
- Piece do piekarni i cukierni
- Blachy do pieczenia nieobjęte zakresem dostawy
- Wersja: Urządzenie gazowe (gaz ziemny G20)
- Gaz ziemny w standardzie, urządzenie może być opcjonalnie przystosowane do zasilania propanem.
- Urządzenie posiada stałe podłączenie wody
- Łatwa obsługa
- Funkcja czasomierza
- Termostat
- Regulator pary
- Przycisk prędkości wentylatora
- Taca na skropliny
- Oświetlenie halogenowe
- Nowoczesna konstrukcja o zoptymalizowanej objętości użytkowej
- Zamrażarka szokowa - 5x GN1/1
- Wyświetlacz cyfrowy
- Produkt wysokiej jakości wyprodukowany w Europie
- Czujnik temperatury rdzenia
- Chłodzi od 100°C do -18°C w ciągu 240 minut
- Chłodzenie od 100°C do +3°C w ciągu 90 minut
- Do pojemników 5x GN 1/1 i tac 40x60, rusztów lub pojemników
- Wydajne chłodzenie konwekcyjne
- Inteligentny alarm HACCP (przedłużająca się awaria zasilania, przekroczenie cyklu chłodzenia)
- Idealnie integruje się z małymi kuchniami
Piec konwekcyjny
- Zaokrąglona komora gotowania
- Prowadnice boczne do rusztów do pieczenia
- Odstępy między blachami do pieczenia: 80 mm
- Maksymalna temperatura: 270 °C
- Optymalne rozchodzenie ciepła
- Dla 6 x GN 1/1 lub dla 6 x GN 400 x 600 mm Pojemniki/tace
Obsługa / sterowanie piekarnikiem na gorące powietrze
- Sterowanie manualne
Chłodzenie zamrażarki szokowej
- Automatyczne odszranianie i odparowywanie kondensatu
- Temperatura do -18 °C
- Czynnik chłodniczy: R452
- Chłodzenie konwekcyjne
- Urządzenia nie wolno umieszczać w bezpośrednim sąsiedztwie kuchenek.
- Maksymalna temperatura otoczenia 38 °C
Jakość
- Wykonany z wysokiej jakości stali nierdzewnej
- Drzwi z podwójnymi szybami
- Drzwi z żaroodpornego szkła
- Uchwyt z włókna węglowego
- Długa żywotność
Opcje gotowania
- Pieczenie
- Gotowanie na parze / osuszanie
- Regeneracja / Utrzymywanie ciepła
Wymiary
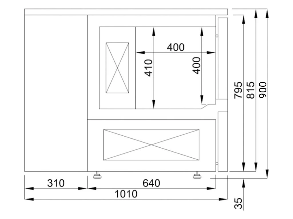
- Wymiary zewnętrzne (Szer.xGłęb.xWys.): 900 mm x 1.010 mm x 1.840 mm
Wytyczne
- Naturalna produkcja zgodna z wytycznymi dotyczącymi higieny i bezpieczeństwa
- Produkt posiada oznaczenie CE zgodnie z przepisami
- Materiał zgodny z europejskimi normami dotyczącymi żywności
Uwaga
- Dostarczany bez materiału połączeniowego - musi zostać podłączony przez specjalistę
Parametry dodatkowe
| Kategoria: | Schładzarki szokowe |
|---|---|
| Waga: | 162 kg |
| EAN: | 4063326331704 |
| Głębokość: | 1010 mm |
| Masa: | 162.000 kg |
| Szerokość: | 900 mm |
| Wydajność: | 1,20 kW |
| Wysokość: | 1840 mm |
Opinie
Bądź pierwszą osobą, która napisze opinię do tego produktu.
